REF. 1646/570 - Clinica en venta en Chihuahua Colonia Centro



Descripción


Clínica de Corta Estancia en Venta – Zona Centro, Chihuahua

Oportunidad única de inversión en una clínica en operación, estratégicamente ubicada en el corazón de la ciudad de Chihuahua. El inmueble cuenta con tres niveles totalmente equipados, diseñados para brindar atención médica de alta calidad y confort a los pacientes.

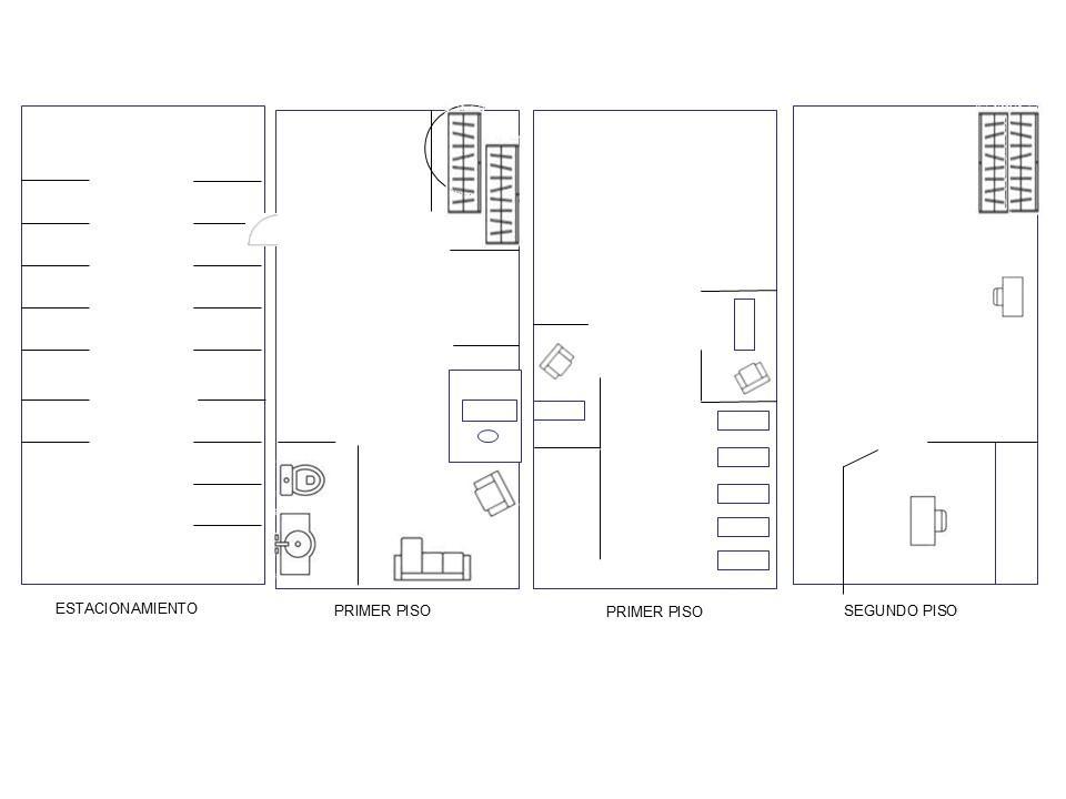
Distribución del inmueble:

Sótano: Estacionamiento con espacio suficiente, área de residuos.

Primer piso:

Recepción y sala de espera

Baño para visitantes

Área de evaluación

2 quirófanos totalmente equipados

Sala general

2 suites privadas para pacientes que requieren de 1 a 2 noches de recuperación

Sala preoperatoria

Cocineta y área de medicamentos

Baño y estancia para médicos

Área de ropería

Tercer piso:

Área administrativa amplia y funcional

Equipamiento adicional:

Sistema de paneles solares

Refrigeración integral en todas las áreas

Cisterna de gran capacidad

Opciones de venta:

Venta del 17% de las acciones: $4,950,000 MXN

O bien, venta total de la clínica (consultar precio completo).

Una excelente opción para médicos inversionistas, grupos hospitalarios o socios estratégicos interesados en expandir su presencia en el sector salud.

Contacto


  • Oficina: 1646 - Alfa Inmobiliaria Zafiro
  • Abolición de la Esclavitud 15104 Local 19, Plaza Paseo del Arte, Fracc. Quintas de San Sebastián, Chihuahua, Chihuahua
  • Teléfonos: 6144989338
  • Whatsapp: 6144989338
  • Email: [email protected]
  • Web: www.alfazafiro.com

Información


  • Precio de venta: 4,950,000 MXN
  • Año de construcción : 1082
  • Á total : 556 m2

Comparte esta Propiedad:

WhatsApp
Facebook
Twitter
Email

CONTACTO

Escríbenos, será un placer atenderte.